Estate
佐伯区八幡の新築一戸建て(分譲・建売)物件情報|ワウハウス
- HOME
- 物件検索
- 広島県エリアの物件を探す
- ソフィスガーデン八幡3丁目Ⅲ/全2邸
Point
物件オススメポイント
家族のプライベートな空間を守る、今なら選べる2邸。
◆平屋×広々ウッドデッキ
◆ほぼ平屋×屋上ルーフバルコニー
同シリーズの2階建ても販売中!詳しくはお気軽にお問い合わせください。
MainPoint________
- 広々ウッドデッキでBBQ!
- 様々な用途に、屋上ルーフバルコニー
- II型アイランドキッチン
- 2WAY洗面室
- 回遊できる家事ラク動線
Location_________
- 八幡保育園/徒歩2分
- 八幡小学校/徒歩7分
- ザ・ビッグ五日市店/車3分
- 池田地公園/徒歩3分
- 西広島バイパス/車4分


Town Information
タウン情報
| 販売価格 | 4,480万円(税込)~4,580万円(税込) | ||
|---|---|---|---|
| 所在地 | 広島市佐伯区八幡3-1077番1 他 | ||
| 交通 | JR山陽本線「五日市」 | ||
| 学校区 | 八幡小学校( 距離:545m ) / 城山中学校( 距離:1400m ) | ||
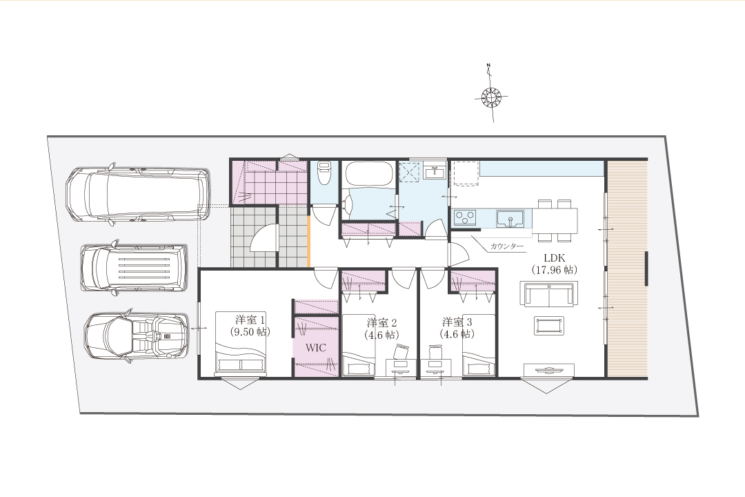
| 間取 | 2SLDK~3LDK | ||
| 建物面積 | 86.8㎡~93㎡ | 土地面積 | 175.38㎡~175.67㎡ |
即時予約
かんたんネット予約はこちら
| 外観画像 | 号地 | 販売価格 | 間取り | 土地面積 | 建物面積 |
|---|---|---|---|---|---|
|
1号地 | 4,480万円(税込) | 間取り:3LDK | 土地面積:175.67㎡ | 建物面積:86.8㎡ |
|
2号地 | 4,580万円(税込) | 間取り:2SLDK | 土地面積:175.38㎡ | 建物面積:93㎡ |
Housing
タウン物件一覧
スタッフ紹介
即時予約
かんたんネット予約はこちら
Location
周辺環境
-
八幡保育園
(92m)
-
広島市立八幡小学校
(545m)
-
城山中学校
(1400m)
-
しらたきクリニック
(600m)
-
かねこ歯科医院
(359m)
-
ザ・ビッグ 五日市店
(1200m)
-
ウォンツ 八幡3号店
(448m)
-
セブンイレブン 広島八幡店
(143m)
-
池田地公園
(220m)
-
バス停/広島電鉄「保井田」
(650m)
即時予約
かんたんネット予約はこちら
About
物件概要
造成工事/- 開発許可番号(日付)/- 建物構造/木造2階建、平屋建(金物工法) 建築確認番号/第HP16-4075862号他 建築年月/2026年3月末予定 総区画数/2区画 今回販売区画数/- 地目/宅地 取引形態/売主 都市計画区域/- 用途地域/1種住居地域 建ぺい率/60% 容積率/200% 道路幅員/4m 私道負担/- 建築条件/- その他/- 電気/中国電力 上水道/公営水道 ガス/- 下水/本下水 情報更新日/2026年02月04日 次回更新予定日/2026年02月18日
Contact
見学予約・資料請求フォーム
- 入力
- 確認
- 完了
※必須項目
各項目をご入力いただき確認するボタンを押してください。